Известный визионер, миллиардер и покоритель космоса Илон Маск рассказал журналистам о планах по созданию круглосуточной закусочной Tesla. Об этом сообщило издание Daily Mail.
Закусочная сможет предложить своим посетителям автомобильный кинотеатр и зарядные станции для электромобилей.

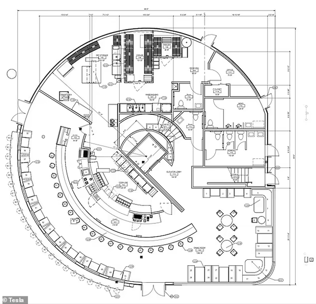
Планируются два 13-метровых экрана, 200 посадочных мест в помещении и на открытом воздухе, а также 28 зарядных станций Tesla Supercharger. Посетители смогут расплачиваться криптовалютой Dogecoin.

Илон Маск хочет разместить двухэтажную закусочную на бульваре Санта-Моника в Голливуде, пустив под снос пиццерию Shakey's Pizza.

Ранее Маск уже сообщал, что фирменные зарядные станции могут быть дополнены закусочными под брендом Tesla. Впервые он упомянул эту идею в Twitter ещё в 2018 году. В прошлом году были поданы заявки на три товарных знака, связанных с возможным выходом в ресторанный бизнес. В феврале Маск написал в Twitter, что «футуристичная закусочная / автомобильный кинотеатр» «планируется в районе Голливуда!».
