Мы продолжаем изучать бюджетные материнские платы под пользующиеся высоким спросом процессоры, время от времени изучая популярность тех или иных моделей. Да, поколение 3ххх процессоров от AMD и поддерживающие их системные чипсеты 5хх серии (X570, B550, A520) вышли достаточно давно, уже поколение 5ххх процессоров стало прошлым (да и 7ххх семейству исполнился год), однако это мало повлияло на популярность дешевых материнских плат, особенно в свете того, что самые современные уже оказываются даже не средне-, а высоко-бюджетными. Поэтому малобюджетные материнки с процессорным гнездом AM4 еще долго будут на слуху.
Стоит напомнить разницу между системными чипсетами AMD X570, B550 и A520. Между X570, B550 и А520 самая большая разница заключается в отсутствии поддержки PCIe 4.0 у последних двух. При этом сами процессоры Ryzen (серии 3000 и 5000) имея встроенную поддержку PCIe 4.0, прекрасно работают на скоростях 4.0 с X570 и В550. А вот на матплатах с А520 уже и процессоры не могут реализовать версию PCIe 4.0, она понижается до 3.0. То есть А520 — это полностью только PCIe 3.0
Линии PCIe, предоставляемые самими чипсетами, работают на скорости 4.0 в X570, а вот на B550 и А520 они только PCIe 3.0. Это также означает, что соединение между чипсетом и процессором Ryzen работает только на скорости PCIe 3.0 на B550 и А520, тогда как на X570 это PCIe 4.0.
Помимо скорости PCIe, B550 и А520 поддерживают меньшее количество линий PCIe и меньшее количество портов USB. В таблице ниже сведены все основные различия.
| Модель чипсета | X570 | B550 | A520 |
|---|---|---|---|
| Связь процессора с чипсетом | PCIe 4.0 x4 | PCIe 3.0 x4 | PCIe 3.0 x4 |
| Версия PCIe от процессора | PCIe 4.0 | PCIe 4.0 | PCIe 3.0 |
| Распределение линий PCIe от процессора | 1x16 или 2x8 | 1x16 или 2x8 | 1x16 |
| Версия PCIe от чипсета | PCIe 4.0 | PCIe 3.0 | PCIe 3.0 |
| Количество линий PCIe от чипсета | 16 | 10 | 6 |
| Количество предустановленных SATA портов от чипсета | 4 | 4 | 2 |
| Количество портов USB 3.2 Gen2 от чипсета | 8 | 2 | 1 |
| Количество портов USB 3.2 Gen1 от чипсета | 0 | 2 | 2 |
| Количество портов USB 2.0 от чипсета | 4 | 6 | 6 |
| Поддержка оверклокинга | Да | Да | Нет |
Следует учитывать, что кроме USB портов, предоставляемых чипсетами, сами процессоры Ryzen 3xxx/5xxx имеют встроенную поддержку 4х портов USB 3.2 Gen2, а также имеют 4 линии PCIe 4.0 (в случае с А520 они становятся 3.0) для накопителя М.2.
Как мы видим, что по сравнению с X570 и B550 чипсет A520 уступает не только в версиях PCIe, он также не поддерживает разделение 16-ти линий от процессора.
Разумеется, помимо меньшей стоимости, у чипсетов B550 и А520 есть еще одно преимущество перед X570: меньшее энергопотребление, а значит на матплатах будет достаточно относительно простых пассивных радиаторов на этих микросхемах.
С отличиями чипсетов мы разобрались, переходим к текущей материнской плате.
У нас сегодня Afox A520D4-MA-V2.
Afox A520D4-MA-V2 поставляется в стандартной коробке. Комплект размещен под платой в отдельном отсеке.
Комплект поставки минимален: кроме традиционного кабеля SATA, имеются накопитель с ПО, «заглушка» на блок задних портов.
ПО поставляется на накопителе типа CD, впрочем за время путешествия платы к покупателю оно все равно успевает устареть, так что придется его обновлять с сайта производителя сразу после покупки.
Форм-фактор
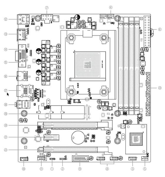
Форм-фактор Mini-ITX имеет размеры 170×170 мм, microATX до 244×244 мм, ATX до 305×244 мм, а E-ATX — до 305×330 мм. Материнская плата Afox A520D4-MA-V2 выполнена в форм-факторе microATX, имеет размеры 244×220 мм, и на ней имеются 6 монтажных отверстий для установки в корпус.
Оборотная сторона — практически пустая. Текстолит обработан хорошо: во всех точках пайки острые концы срезаны. «Заглушка» на заднюю панель с разъемами идет в комплекте отдельно.
Защитной пластины (бэкплейта) нет.
Технические характеристики
Традиционная таблица с перечнем функциональных особенностей.
| Поддерживаемые процессоры | AMD Ryzen 3000/4000/5000 (неофициально — все Ryzen) |
|---|---|
| Процессорный разъем | AM4 |
| Чипсет | AMD A520 |
| Память | 4 × DDR4, до128 ГБ, до DDR4-3200, два канала |
| Аудиоподсистема | 1 × Realtek ALC662 (5.1) |
| Сетевые контроллеры | 1 × Realtek RTL8111 Ethernet 1,0 Гбит/с |
| Слоты расширения | 1 × PCI Express 3.0 x16 (режим x16)(CPU) 1 × PCI Express 3.0 x16 (режим x4)(A520) 1 × PCI Express 3.0 x1 (A520) |
| Разъемы для накопителей | 2 × SATA 6 Гбит/с (A520) 1 × M.2 (CPU, PCIe 3.0 x4/SATA для устройств формата 2242/2260/2280) |
| USB-порты | 4 × USB 2.0: 2 внутренних разъема, каждый на 2 порта (A520) 2 × USB 3.2 Gen2: 2 порта Type-A (голубые) на задней панели (A520) 2 × USB 3.2 Gen1: 1 внутренний разъем на 2 порта (A520) 2 × USB 3.2 Gen1: 4 порта Type-A (синие) на задней панели (CPU) |
| Разъемы на задней панели | 2 × USB 3.2 Gen1 (Type-A) 2 × USB 3.2 Gen2 (Type-A) 1 × RJ-45 3 аудиоразъема типа миниджек 1 × HDMI 2.0b 1 × d-Sub (VGA) 1 × DVI-D 2 × PS/2 |
| Прочие внутренние элементы | 24-контактный разъем питания ATX 1 8-контактный разъем питания EPS12V 1 разъем для подключения 2 портов USB 3.2 Gen1 2 разъема для подключения 4 портов USB 2.0 3 разъема для подключения 4-контактных вентиляторов и помп ЖСО 1 разъем COM-порт 1 разъем сброса CMOS 1 разъем аудио для передней панели корпуса 2 разъема для подключения управления с передней панели корпуса |
| Форм-фактор | microATX (244×220 мм) |
| Розничные предложения |
Основная функциональность: чипсет, процессор, память

Схема работы связки чипсет+процессор.
Процессоры Ryzen 3000/5000 суммарно имеют 24 линии ввода-вывода (включая PCIe 4.0). 4 линии (в данном случае превращаясь в PCIe 3.0) идут на связь с чипсетом A520. Еще 16 линий — это PCIe слоты для видеокарт. Осталось 4 линии: они могут конфигурироваться производителями материнских плат на выбор (либо-либо):
- работа одного NVMe накопителя х4 (высокоскоростной PCI-E 4.0)
- два SATA-порта по х1 + 1 порт NVMe x2
- два порта NVMe x2
Также процессоры Ryzen 3000/5000 имеют встроенные 4 порта USB 3.2 Gen2.
В свою очередь чипсет A520 поддерживает в сумме 12 линий PCIe 3.0. Из них опять же 4 нужны для связи с CPU. Осталось 8 линий ввода-вывода, из которых 2 заняты портами SATA, а остальные 6 линий могут свободно конфигурироваться.
Также A520 поддерживает 1 порт USB 3.2 Gen2, 2 порта USB 3.2 Gen1, 6 портов USB 2.0.
Таким образом в сумме от тандема A520+Ryzen 3000/5000 мы получаем:
- 16 PCIe 3.0 линий для видеокарт (от процессора);
- 4 PCIe 3.0 линии от процессора + 6 PCIe 3.0 линий от чипсета, которые могут образовывать разные варианты комбинаций портов и слотов (в зависимости от производителя материнских плат);
- 2 порта SATA 6Гбит/с (от чипсета);
- 5 портов USB 3.2 Gen2 (4 от процессора, 1 от чипсета);
- 2 порта USB 3.2 Gen1 от чипсета;
- 6 портов USB 2.0 (от чипсета).
Итого: 13 портов USB, 2 порта SATA, 10 свободных PCIe линий.
Еще раз надо напомнить, что матплата Afox поддерживает процессоры AMD Ryzen всех поколений, выполненные под разъем (сокет) AM4 (официально только Ryzen 3000/5000).
Для установки модулей памяти на плате Afox имеется 4 DIMM-слота. Плата поддерживает небуферизованную память DDR4 (non-EСС), а максимальный объем памяти составляет 128 ГБ. При наличии двух модулей памяти рекомендуется их устанавливать в слоты DIMM2/4 (черного цвета).
Слоты DIMM имеют металлическую окантовку, защищающую их от повреждений и электромагнитных помех.
Периферийная функциональность: PCIe, SATA, разные «фенечки»
Выше мы изучили потенциальные возможности тандема A520+Ryzen, а теперь посмотрим, что из этого и как реализовано в данной материнской плате.
Кроме USB-портов, к которым мы подойдем позже, чипсет A520 обладает 6 PCIe линиями и 2 портами SATA. Считаем, сколько линий уходит на поддержку (связь) с тем или иным элементом:
- Слот PCIe x1_1 (1 линия PCIe 3.0);
- Слот PCIe x16_2 (4 линии PCIe 3.0);
- Realtek RTL8111H (Ethernet 1,0Gb/s) (1 линия PCIe 3.0);
- Порты SATA 1/2;
6 линий PCIe оказались занятыми плюс порты SATA 1/2, суммарно потрачено 8 HSIO.
Теперь посмотрим выше на то, как работают процессоры в данной конфигурации. У CPU всего 20 линий PCIe, 4 из них версии PCIe 4.0 (в данном случае реализована версия 3.0) отведены на порт М.2 (M2_1). Оставшиеся 16 линий PCIe 4.0 (в данном случае 3.0) идут на единственный слот PCIe x16_1, поэтому вариантов переключений нет, как и мультиплексоров для этих целей.
Теперь в целом про слоты PCIe. Всего на плате есть 3 слота: один PCIe x16 (для видеокарт или других устройств), слот PCIe x16_2 и слот PCIe x1. Если про первый PCIe x16_1 я выше уже рассказал (он подключен к CPU), то оба других подключены к A520, при этом второй «длинный» PCIe x16_2 имеет всего 4 линии PCIe 3.0.
Первый «процессорный» слот PCIe x16 имеет металлическое армирование, предохраняющее слот от физического износа (в случае частых смен видеокарт) и электромагнитных помех.
Матплата позволяет смонтировать СО любого размера.
На очереди — накопители.
Всего у платы 2 разъема Serial ATA 6 Гбит/с + 1 слот для накопителей в форм-факторе M.2.
Порты SATA реализованы через чипсет A520 и поддерживают создание RAID.
Материнская плата имеет 1 слот форм-фактора М.2, работающий с модулями с любым интерфейсом, поддерживающий размеры модулей 2242/2260/2280. Он получает данные от CPU (PCIe 3.0)
Охлаждения у слота М.2_1 нет.
Периферийная функциональность: USB-порты, сетевые интерфейсы, ввод-вывод
Теперь на очереди USB-порты и прочие вводы-выводы. И начнем с задней панели, куда выведены большинство из них.
Повторим: чипсет A520 способен реализовать не более 9 портов USB, из которых может быть до 2 портов USB 3.2 Gen1, 1 порт USB 3.2 Gen2, до 6 портов USB 2.0.
Также мы помним и про 6 линий PCIe (+ 2 SATA), которые идут на поддержку накопителей, сетевых и иных контроллеров (я выше уже показал на что и как расходуются 8 линий из 8).
И что мы имеем? Всего на материнской плате — 10 портов USB:
- 2 порта USB 3.2 Gen2: реализованы через CPU и представлены на задней панели 2 портами Type-A (голубого цвета);
- 4 порта USB 3.2 Gen1: 2 реализованы через CPU и представлены на задней панели 2 портами Type-A (синего цвета); еще два реализованы через A520 и представлены внутренним разъемом на материнской плате на 2 порта;
- 4 порта USB 2.0/1.1: все реализованы через A520 и представлены двумя внутренними разъемами на материнской плате (каждый на 2 порта).
Итак, через чипсет A520 реализовано выделенных 2 USB 3.2 Gen1 (еще 2 Gen1 и 2 USB 3.2 Gen2 реализованы через CPU).
= 2 высокоскоростных порта. Плюс 4 выделенных порта USB 2.0. Всего 6 USB портов реализовано через A520.
Ну и 8 HSIO (линий PCIe и портов SATA), выделенных на поддержку иной периферии.
Теперь о сетевых делах.
Материнская плата оснащена средствами связи скромно. Имеется Ethernet-контроллер Realtek RTL8111, способный работать по стандарту 1,0 Гбит/с.
Беспроводного сетевого адаптера нет, также и нет слота M.2 (E-key) для подобных устройств.
Заглушка, традиционно надеваемая на заднюю панель, поставляется отдельно в комплекте.
Аудиоподсистема
Мы знаем, что почти во всех современных материнских платах звуковым кодеком является продукт от Realtek, обеспечивающий вывод звука по схемам до 7.1, в последнее время это стал ALC4080 с характеристиками 32 бит / 384 кГц. До того мы несколько лет лицезрели ALC1220 с характеристиками по-проще. Однако в данном случае применен очень старый Realtek ALC662 (5.1).
Аудиоподсистема проста: нет ни операционных усилителей, ни ЦАП, ни «аудиофильских» конденсаторов.
Аудиотракт вынесен на угловую часть платы, не пересекается с другими элементами. Все аудиоразъемы на задней панели имеют привычную цветовую окраску.
S/PDIF отсутствует.
Питание, охлаждение
Для питания платы на ней предусмотрены 2 разъема: в дополнение к 24-контактному ATX здесь есть еще 8-контактный EPS12V.
Схема питания процессора выполнена по схеме 4+1+1 (всего 6 фаз, 4 на VCore, 1 на SoC и 1 на графическое ядро).
Каждый канал фазы имеет суперферритовый дроссель и набор полевых транзисторов SM4377/4522 от Sinopower (до 50А).
Управляет схемой питания 6-фазный ШИМ-контроллер Richtek RT3667.
Питание модулей оперативной памяти имеет однофазную схему.
Теперь про охлаждение. Оно банальное.
Охлаждение имеет чипсет А520 и блок VRM с фазами питания VCore.
Остальные фазы питания VRM, а также M.2 слот не имеют охлаждения.
Подсветка
Программное обеспечение под Windows
Настройки BIOS
Работоспособность (и разгон)
Запускаем все в режиме по умолчанию. Затем нагружаем стресс-тестами.
Хорошо видно, что, несмотря на относительную слабость системы питания у платы, мы смогли легко получить авторазгон Ryzen 5 Pro 4350 до 4,1 ГГц по всем ядрам. И это при стрессовой нагрузке теста, которой в жизни практически не бывает. Конечно, что повышение с 3.7 ГГц до 4.1 ГГц кому-то покажется малозначимым повышением частоты, однако подчеркну, что мы имеем дело с одной из самых простых на сегодня материнских плат! За ее стоимость это очень неплохой показатель! Да и, кстати, нагрев VRM был еще в норме, учитывая, что не все силовые преобразователи имели охлаждение.
Выводы
Материнская плата Afox A520D4-MA-V2 ориентирована на самых нетребовательных пользователей, которые хотят получить бюджетное решение для дешевого ПК. Данная модель форм-фактора microATX обеспечивает достаточное питание для умеренного авторазгона процессоров среднего уровня (при этом разгон именно автоматический, без вмешательства пользователя).
У платы 10 USB-портов, включая 4 USB 3.2 Gen1 и 2 USB 3.2 Gen2. Для установки видеокарты имеется один слот PCIe 3.0 х16, также есть по слоту PCIe 3.0 x1 и PCIe 3.0 x4. Для накопителей предлагаются 1 слот M.2 (подключен напрямую к процессору линиями PCIe 3.0) и 2 порта SATA. Сетевые возможности включают лишь один проводной контроллер 1 Гбит/с, слота М.2 для установки отдельно приобретаемого беспроводного контроллера нет. Возможностей подсветки у платы нет никаких. В целом всё весьма бюджетно, чего и следовало ожидать от модели со стоимостью в 7 тысяч рублей (на Озоне к моменту тестирования).
















































